347 7373175 (Laura) - 336 651309 (Berta) - 393 9656904 (Titta/Laura)
VENDITA

Terratetto - Pistoia

Montale

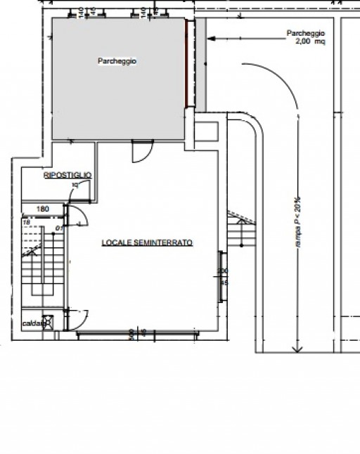
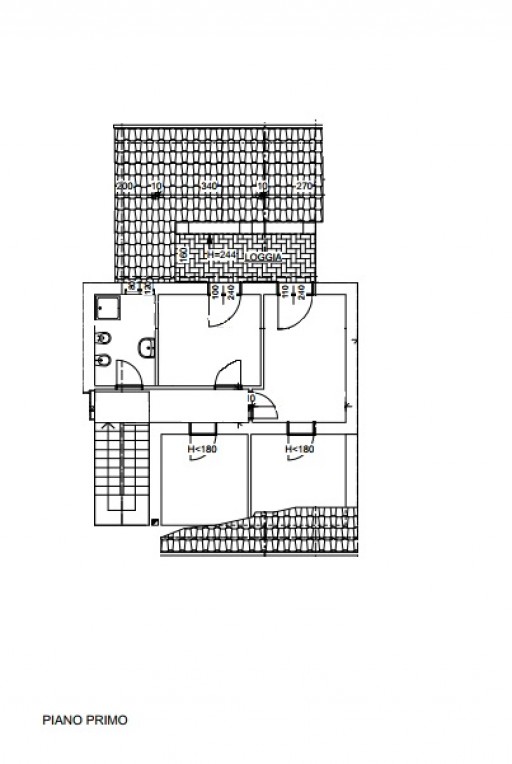
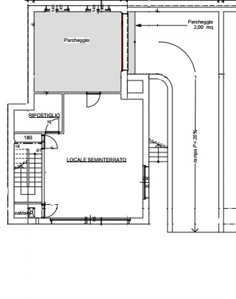
In un area verde e tranquilla ai piedi della collina del Monteferrato, si propone in vendita una villetta di nuova costruzione con i più avanzati sistemi di costruzione, che permettono una classe energetica A. Tetto in legno ventilato, riscaldamento a pavimento, infissi 42DBL, persiane in alluminio con interno in legno, impianto di aspirazione centralizzato , impianto di riciclo aria, condizionamento, allarme, finiture di qualità (parquet e gres porcellanato). L´interno della casa è ancora da dividere ed è possibile personalizzarla. Il giardino privato misura mq. 270 ed è su tre lati.

RIF:
02103 PT
TIPOLOGIA:
Terratetto
MTQ:
250
VANI:
6
SERVIZI:
3
CAMERE:
3
TERRAZZI:
2
GIARDINO:
270 MQ.
CLASSE ENERGETICA:
A+
€. 750.000
GALLERIA FOTOGRAFICA