347 7373175 (Laura) - 336 651309 (Berta) - 393 9656904 (Titta/Laura)
AFFITTO

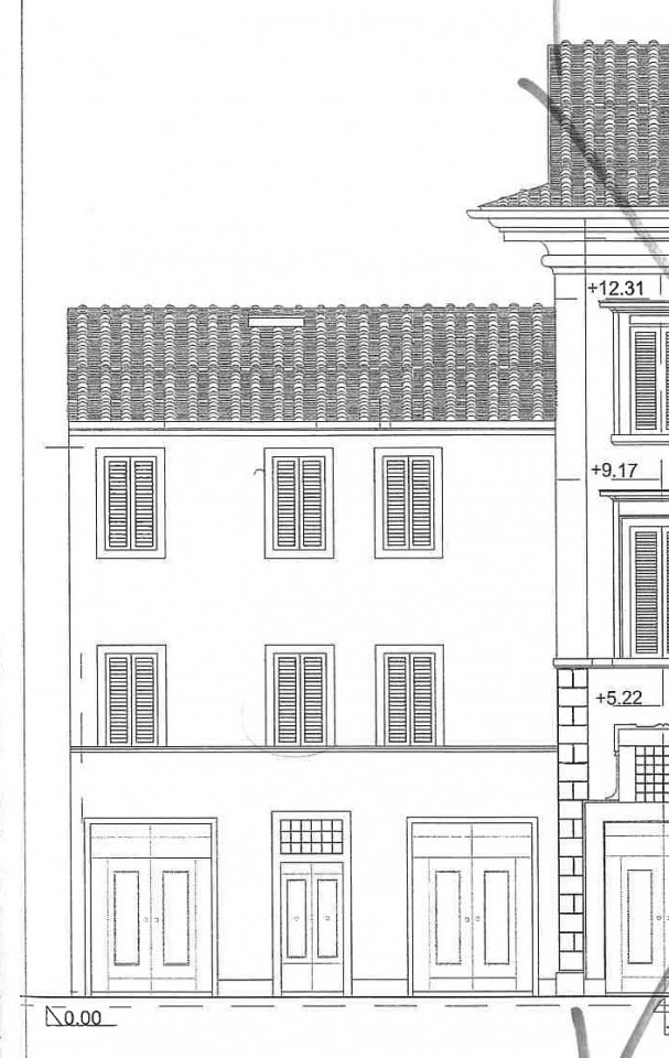
Loft - Prato

Centro storico

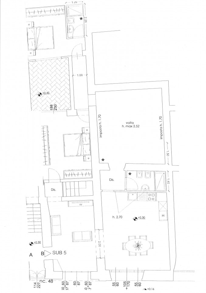
In bel palazzo completamente ristrutturato in una strada tranquilla del Centro Storico, si propone in affitto un affascinante piano terra tipo loft, con resede interno, composto da cucina, soggiorno, due camere che affacciano sulla corte interna, due bagni e una lavanderia/stanza armadi. Completamente rinnovato con pavimenti in parquet, riscaldamento autonomo e aria condizionata. Arredato con gusto contemporaneo molto piacevole. Disponibile da Aprile

RIF:
10284 PO
TIPOLOGIA:
Loft
MTQ:
145
VANI:
5
SERVIZI:
2
CAMERE:
2
GIARDINO:
resede
CLASSE ENERGETICA:
A+
PLANIMETRIA:
€. 1.300
GALLERIA FOTOGRAFICA