347 7373175 (Laura) - 336 651309 (Berta) - 393 9656904 (Titta/Laura)
VENDITA

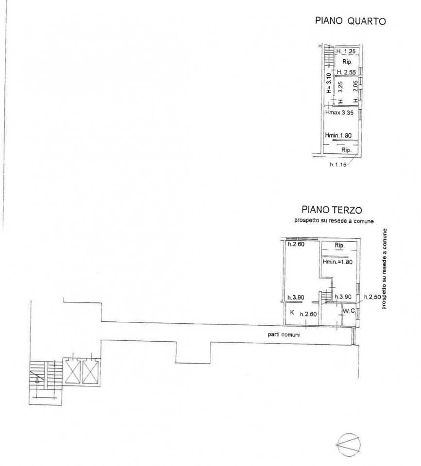
Appartamento - Abetone

Val di Luce

Appartamento completamente ristrutturato in Val di Luce, al terzo ed ultimo piano, ben posizionato con finestre che danno sulla piazza e sulle piste, molto luminoso. L“immobile č su due livelli e ottimamente suddiviso con un“ampia zona giorno, tre camere doppie e due bagni. Piacevolmente arredato e pronto per essere abitato.

RIF:
01805 Ab
TIPOLOGIA:
Appartamento
MTQ:
88
VANI:
5
SERVIZI:
2
CAMERE:
3
ASCENSORE:
SI
CLASSE ENERGETICA:
G
€. 180.000
GALLERIA FOTOGRAFICA